Dernier étage - T4 - 3 CH - 85m²
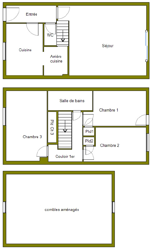
En 3ème et dernier étage, entièrement rafraîchi et équipé de neuf, Bel Appartement loué vide ou meublé de 85 m² habitables (67,65 m² Boutin) grâce à une grande mezzanine de 17 m² pouvant servir de 3éme chambre - Dans cette résidence familiale recherchée avec magnifique Parc de 6 ha et Tennis, au centre du village, ce T4 est lumineux, il offre 2 ou 3 chambres, séjour double, cuisine séparée entièrement équipée (réfrigérateur-four-LV-LL & SècheLinge), SdBain et Toilettes séparées, placards multiples, parquet. Local à Vélos commun. Résidence sécurisée avec gardien, contrôle d'accès, Chauffage/ECS individuel gaz et faibles charges. Proximité immédiate commerces, écoles et gare Transilien (ligne L - 20mn LaDéfense- 40mn St-Lazare). DPE E/311 GES E/68. Estimation des dépenses annuelles d'énergie pour un usage standard 1390€ et 1900€ année de référence 2021. Stationnement facile et en option possibilité de location parking sécurisé. Votre contact BOURGEOIS - (EI RSAC de Versailles n°93306804) au 06.84.75.82.92
Annonce proposée par un agent commercial Les informations sur les risques auxquels ce bien est exposé sont disponibles sur le site Géorisques
Réf : BELAP14570210740
1 500 €
CC*
Exclusif
Coup de coeur
