Aller à :

  • Aller à la recherche
  • Aller au menu principal
  • Aller au contenu
  • Accueil
  • Actualités
  • Nos biens
    • Vente
    • Location
    • Vendus
  • Vente
  • Location
  • Gestion locative
  • Syndic de copropriété
  • Financement
  • Recrutement
  • Espace client
    • Transaction
    • Gestion Locative / Syndic
Se connecter
ESPACE PROPRIÉTAIRE ESPACE GESTION/SYNDIC
  1. Accueil
  2. Vente
  3. Villebon sur yvette
  4. Terrain
  • Acheter De l'ancien
  • Louer
Créez votre alerte e-mail
Dans un rayon de
Budget
Mini €
Maxi €

    Faites estimer votre bien par un professionnel

    Estimer votre bien
    Nouveauté
    Mandat : 878404545
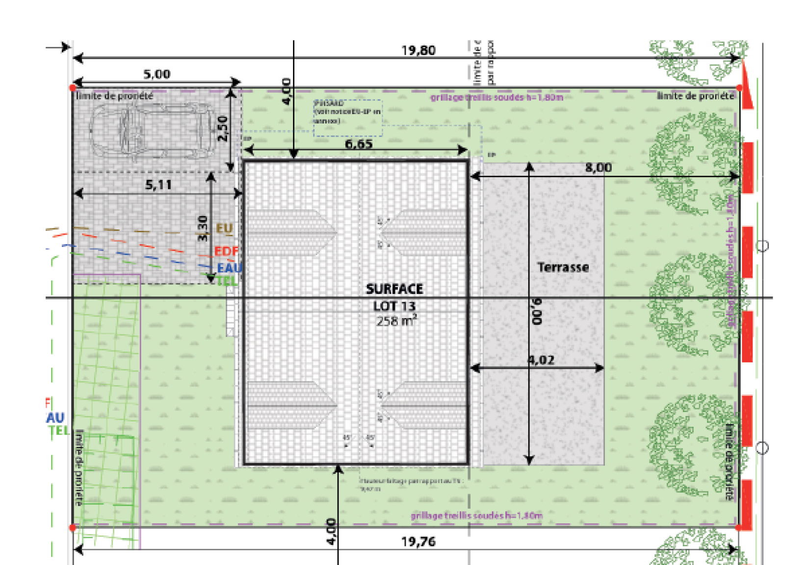
    Terrain 435 m²
    TRAD_MELTEM_Superficieterrainenm² 435 m²
    192 400 €

    VILLEBON SUR YVETTE LIMITE PALAISEAU Villebon sur yvette (91140)

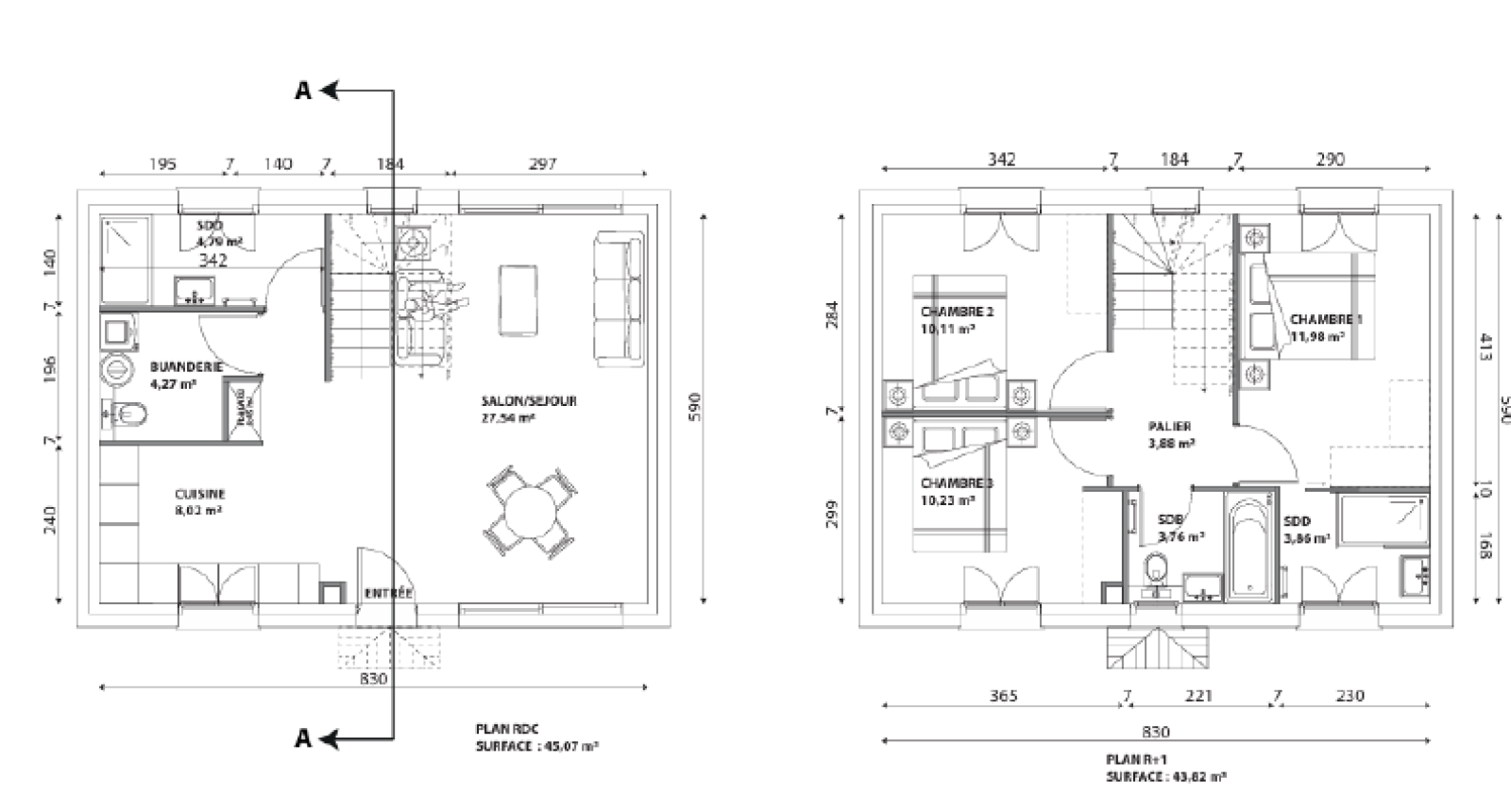
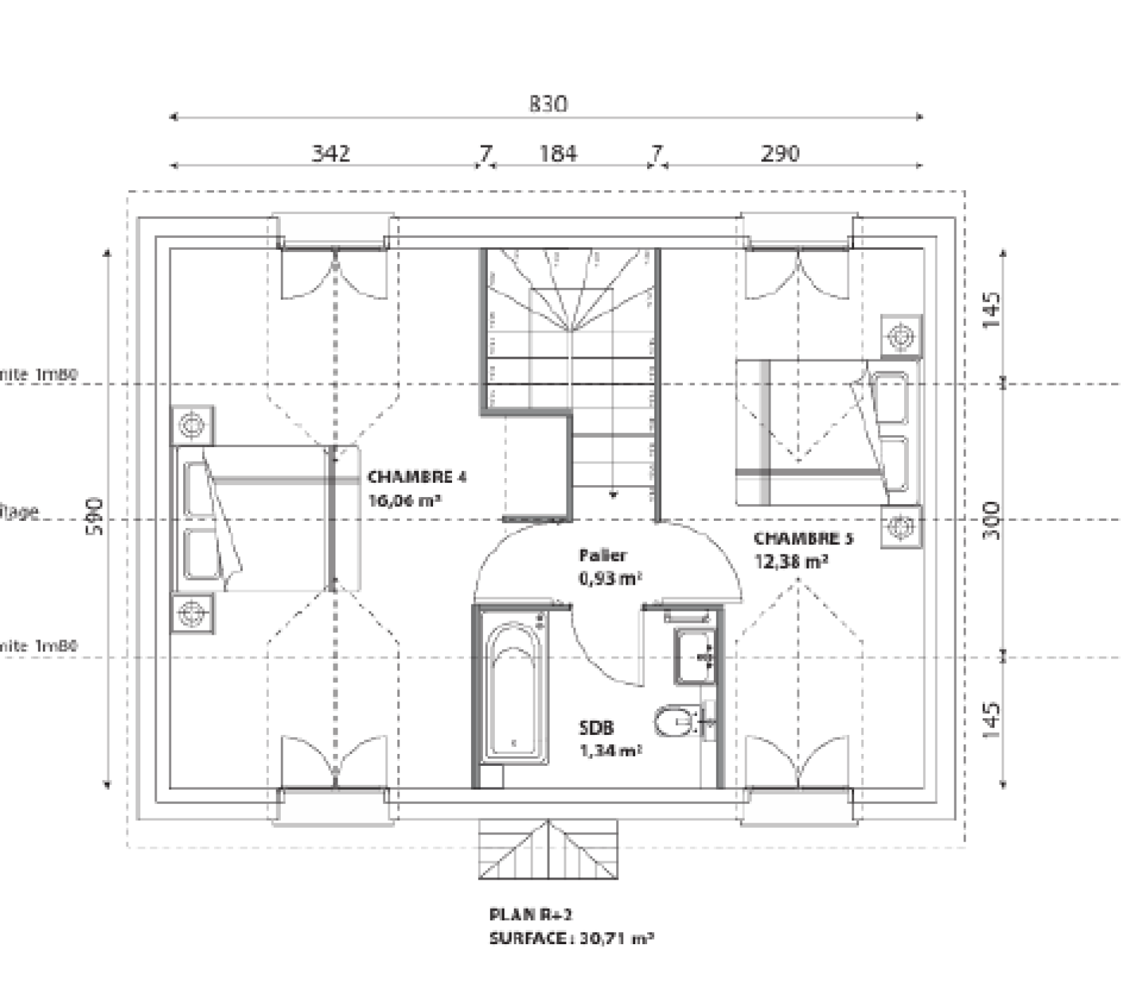
    A VENDRE TERRAIN CONSTRUCTIBLE 258M²

    Dans un écrin de verdure, Terrain constructible faisant parti d'un lotissement.

    Le terrain est viabilisé, permis de construire purgé pour une maison de plus de 119m², libre de tout constructeur vous pourrez aménager l'intérieur à votre guise.

    Vous serez situé à 950m de la gare RER B de Palaiseau-Villebon, à 200m d'un crèche, 600m d'une boulangerie, 400m d'une école et 450 d'un supermarché.

    Vous pourrez faire votre sport avec la proximité des terrains de Tennis, de Rugby, de Foot ou bien faire une ballade familale dans le parc Georges Sand.

    Venez profitez d'une vie à la campagne aux portes de Paris.

    Contactez Laurent STELLA au 01 69 96 64 69

    Le bien en vidéo
    SpotVideo
    • Général
    • Détails +
    • Financier
    • Copropriété
    • Quartier
    • Honoraires
    Caractérisque Valeurs
    Code postal 91140
    surface terrain 435 m²
    Terrain constructible OUI
    Surface constructible 435
    Caractérisque Valeurs
    Terrain Viabilisé OUI
    Raccordement eau OUI
    Raccordement électricité OUI
    Caractérisque Valeurs
    Prix de vente honoraires TTC inclus 192 400 €
    Caractérisque Valeurs
    Caractérisque Valeurs
    Copropriété NON
    • Commerces et santé
    • Loisirs
    • Ecoles
    • Transports
    • Pratique
    Barème d'honoraires
    Cette offre
    vous intéresse
    Agence Palaiseau
    0187270484
    E-mail immodefranceparisidf@mail.scorimmo.com
    7 rue de Paris 91120 Palaiseau

    * champs obligatoires

    Les informations recueillies sur ce formulaire sont enregistrées dans un fichier informatisé par La Boite Immo pour la gestion de la clientèle/prospects de CPH Immobilier. Elles sont conservées jusqu'à demande de suppression et sont destinées à CPH Immobilier. La base légale du traitement repose sur l'intérêt légitime du Responsable du Traitement. Conformément à la loi « informatique et libertés », vous pouvez exercer votre droit d'accès aux données vous concernant et les faire rectifier en contactant CPH Immobilier. Nous vous informons de l’existence de la liste d'opposition au démarchage téléphonique « Bloctel », sur laquelle vous pouvez vous inscrire ici : https://conso.bloctel.fr/
    Ce site est protégé par reCAPTCHA, les Politiques de Confidentialité et les Conditions d'Utilisation de Google s'appliquent.

    Partager le bien
    Nos outils
    Imprimer Imprimer
    Calculatrice financière

    * Champ obligatoire

    Partager l'annonce

    * champs obligatoires

    Les informations recueillies sur ce formulaire sont enregistrées dans un fichier informatisé par La Boite Immo pour la gestion de la clientèle/prospects de CPH Immobilier. Elles sont conservées jusqu'à demande de suppression et sont destinées à CPH Immobilier. La base légale du traitement repose sur l'intérêt légitime du Responsable du Traitement. Conformément à la loi « informatique et libertés », vous pouvez exercer votre droit d'accès aux données vous concernant et les faire rectifier en contactant CPH Immobilier. Nous vous informons de l’existence de la liste d'opposition au démarchage téléphonique « Bloctel », sur laquelle vous pouvez vous inscrire ici : https://conso.bloctel.fr/
    Ce site est protégé par reCAPTCHA, les Politiques de Confidentialité et les Conditions d'Utilisation de Google s'appliquent.

    Partager avec vos proches

    Facebook Facebook
    Messenger Messenger
    Twitter Twitter
    WhatsApp WhatsApp
    LinkedIn LinkedIn
    Copier le lien Copier le lien
    Détail des diagnostics énergétiques
    DPE GES
    DPE ANCIENNE VERSION
    Contacter
    nos agences

    Remplissez ce formulaire, nous ferons de notre mieux pour vous répondre dans les meilleurs délais.

    TRAD_MELTEM_voscoordonnees
    TRAD_MELTEM_voredemande
    Règlementation

    * Champ obligatoire

    Les informations recueillies sur ce formulaire sont enregistrées dans un fichier informatisé par La Boite Immo pour la gestion de la clientèle/prospects de CPH Immobilier. Elles sont conservées jusqu'à demande de suppression et sont destinées à CPH Immobilier. La base légale du traitement repose sur l'intérêt légitime du Responsable du Traitement. Conformément à la loi « informatique et libertés », vous pouvez exercer votre droit d'accès aux données vous concernant et les faire rectifier en contactant CPH Immobilier. Nous vous informons de l’existence de la liste d'opposition au démarchage téléphonique « Bloctel », sur laquelle vous pouvez vous inscrire ici : https://conso.bloctel.fr/
    Ce site est protégé par reCAPTCHA, les Politiques de Confidentialité et les Conditions d'Utilisation de Google s'appliquent.

    Page d'accueil
    Adhérents

    © 2026 | Tous droits réservés | Traduction powered by Google |

    • Plan du site
    • Mentions légales
    • Nos honoraires
    • Nos liens
    • RGPD
    • Acheter De l'ancien
    • Louer
    Créez votre alerte e-mail
    Dans un rayon de
      Budget
      Mini €
      Maxi €
      Surface
      Mini m²
      Maxi m²
      Surface terrain
      Mini m²
      Maxi m²

      Particularites

      Afficher les biens

      Faites estimer votre bien par un professionnel

      Estimer votre bien