Aller à :

  • Aller à la recherche
  • Aller au menu principal
  • Aller au contenu
  • Accueil
  • Actualités
  • Nos biens
    • Vente
    • Location
    • Vendus
  • Vente
  • Location
  • Gestion locative
  • Syndic de copropriété
  • Financement
  • Recrutement
  • Espace client
    • Transaction
    • Gestion Locative / Syndic
Se connecter
ESPACE PROPRIÉTAIRE ESPACE GESTION/SYNDIC
  1. Accueil
  2. Vente
  3. Rambouillet
  4. Autre
  • Acheter De l'ancien
  • Louer
Créez votre alerte e-mail
Dans un rayon de
Budget
Mini €
Maxi €

    Faites estimer votre bien par un professionnel

    Estimer votre bien
    Mandat : 225739
    Autre 105 m²
    Nombre de pièces 5
    Nombre de balcons 2
    234 000 €

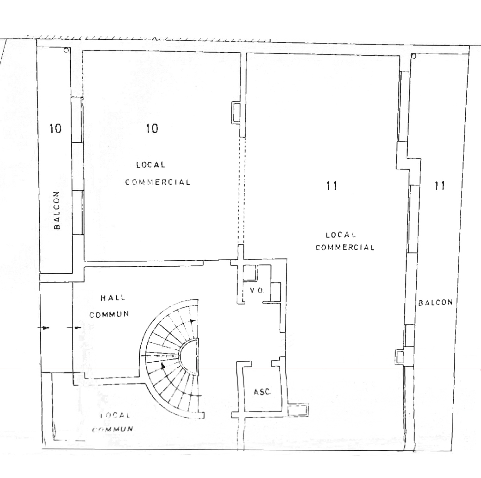
    LOCAL COMMERCIAL (Mutation possible) Rambouillet (78120)

    Idéal investisseur ou professionnel : A deux pas de la gare, proche centre ville, local commercial d'environ 105m² comprenant un SAS, une entrée, un espace commercial, deux bureaux, archives et sanitaires.

    Ses atouts : Traversant, deux balcons, belle luminosité, une entrée côté rue indépendante et deux entrées possible par les communs.

    Ses plus : Beau potentiel pour une mutation en un ou plusieurs appartements. Demande acceptée par la mairie. Places de stationnement disponibles, à prévoir pour cette transformation.

    Copropriété de 41 lots dont 9 lots d'habitation et commercial. Quote part annuelle de charge 2255€.

    Montant estimé des dépenses annuelles énergétiques pour un usage standard entre 2790€ et 3810€, année de référence moyenne 2021, 2022, 2023. Local commercial à consommation énergétiquement excessive.

    Venez découvir ce local avec votre AGENCE CPH IMMOBILIER RAMBOUILLET, Alexandra DUTRUEL vous y accompagnera.


    Les informations sur les risques auxquels ce bien est exposé sont disponibles sur le site Géorisques
    • Général
    • Détails +
    • Financier
    • DPE
    • Copropriété
    • Quartier
    • Honoraires
    Caractérisque Valeurs
    Code postal 78120
    Surface habitable (m²) 105 m²
    Surface loi Carrez (m²) 104,25 m²
    Nombre de pièces 5
    Nombre de niveaux 1
    Caractérisque Valeurs
    Cuisine Sans
    Mode de chauffage Electrique
    Type de chauffage Radiateur
    Format de chauffage AUTRE
    Balcon OUI
    Murs mitoyens 1
    Année de construction 1980
    Quartier Gare A Pied
    Caractérisque Valeurs
    Prix de vente 234 000 €
    Les honoraires d'agence seront intégralement à la charge du vendeur  
    Taxe foncière annuelle 2 797 €
    DPE GES
    Caractérisque Valeurs
    Copropriété OUI
    nombre de lots 41
    Quote Part annuelle des charges 2 255 €
    plan de sauvegarde NON
    • Commerces et santé
    • Loisirs
    • Ecoles
    • Transports
    • Pratique
    Barème d'honoraires
    Cette offre
    vous intéresse
    Agence RAMBOUILLET
    0187270484
    E-mail immodefranceparisidf@mail.scorimmo.com
    3 RUE CHASLES 78120 Rambouillet

    * champs obligatoires

    Les informations recueillies sur ce formulaire sont enregistrées dans un fichier informatisé par La Boite Immo pour la gestion de la clientèle/prospects de CPH Immobilier. Elles sont conservées jusqu'à demande de suppression et sont destinées à CPH Immobilier. La base légale du traitement repose sur l'intérêt légitime du Responsable du Traitement. Conformément à la loi « informatique et libertés », vous pouvez exercer votre droit d'accès aux données vous concernant et les faire rectifier en contactant CPH Immobilier. Nous vous informons de l’existence de la liste d'opposition au démarchage téléphonique « Bloctel », sur laquelle vous pouvez vous inscrire ici : https://conso.bloctel.fr/
    Ce site est protégé par reCAPTCHA, les Politiques de Confidentialité et les Conditions d'Utilisation de Google s'appliquent.

    Partager le bien
    Nos outils
    Imprimer Imprimer
    Calculatrice financière

    * Champ obligatoire

    Partager l'annonce

    * champs obligatoires

    Les informations recueillies sur ce formulaire sont enregistrées dans un fichier informatisé par La Boite Immo pour la gestion de la clientèle/prospects de CPH Immobilier. Elles sont conservées jusqu'à demande de suppression et sont destinées à CPH Immobilier. La base légale du traitement repose sur l'intérêt légitime du Responsable du Traitement. Conformément à la loi « informatique et libertés », vous pouvez exercer votre droit d'accès aux données vous concernant et les faire rectifier en contactant CPH Immobilier. Nous vous informons de l’existence de la liste d'opposition au démarchage téléphonique « Bloctel », sur laquelle vous pouvez vous inscrire ici : https://conso.bloctel.fr/
    Ce site est protégé par reCAPTCHA, les Politiques de Confidentialité et les Conditions d'Utilisation de Google s'appliquent.

    Partager avec vos proches

    Facebook Facebook
    Messenger Messenger
    Twitter Twitter
    WhatsApp WhatsApp
    LinkedIn LinkedIn
    Copier le lien Copier le lien
    Détail des diagnostics énergétiques
    DPE GES

    Logement à consommation énergétique excessive : classe F

    Montant estimé des dépenses annuelles d'énergie pour un usage standard est compris entre 2 790 € et 3 810 € . Prix moyens des énergies indexés sur les années 2021, 2022 et 2023 (abonnements compris).

    Contacter
    nos agences

    Remplissez ce formulaire, nous ferons de notre mieux pour vous répondre dans les meilleurs délais.

    TRAD_MELTEM_voscoordonnees
    TRAD_MELTEM_voredemande
    Règlementation

    * Champ obligatoire

    Les informations recueillies sur ce formulaire sont enregistrées dans un fichier informatisé par La Boite Immo pour la gestion de la clientèle/prospects de CPH Immobilier. Elles sont conservées jusqu'à demande de suppression et sont destinées à CPH Immobilier. La base légale du traitement repose sur l'intérêt légitime du Responsable du Traitement. Conformément à la loi « informatique et libertés », vous pouvez exercer votre droit d'accès aux données vous concernant et les faire rectifier en contactant CPH Immobilier. Nous vous informons de l’existence de la liste d'opposition au démarchage téléphonique « Bloctel », sur laquelle vous pouvez vous inscrire ici : https://conso.bloctel.fr/
    Ce site est protégé par reCAPTCHA, les Politiques de Confidentialité et les Conditions d'Utilisation de Google s'appliquent.

    Page d'accueil
    Adhérents

    © 2026 | Tous droits réservés | Traduction powered by Google |

    • Plan du site
    • Mentions légales
    • Nos honoraires
    • Nos liens
    • RGPD
    • Acheter De l'ancien
    • Louer
    Créez votre alerte e-mail
    Dans un rayon de
      Budget
      Mini €
      Maxi €
      Surface
      Mini m²
      Maxi m²

      Particularites

      Afficher les biens

      Faites estimer votre bien par un professionnel

      Estimer votre bien