LOCAL PROFESSIONNEL A TRAPPES Trappes (78190)
À vendre : Local professionnel – Cabinet dentaire en plein centre ville de TRAPPES.
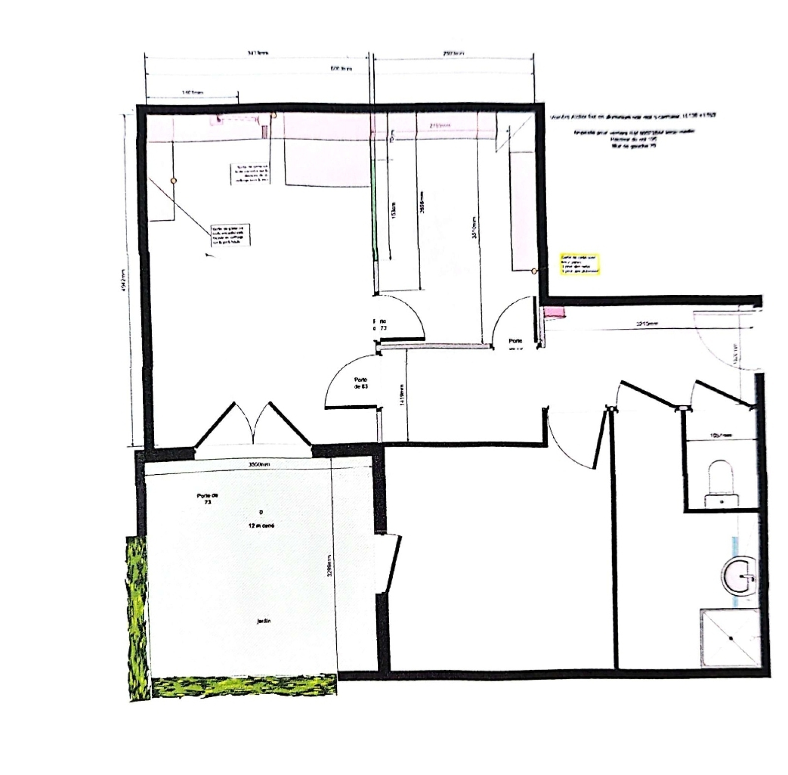
Situé en rez-de-jardin dans une résidence sécurisée, ce local de 54 m² est idéal pour un dentiste recherchant une zone doté d'une bonne patientèle ou un investisseur souhaitant acquérir un bien locatif dans le secteur médical.
A l'initial, un appartement de deux pièces comprenenant : séjour, entrée, 2 chambres , salle de bains et W.C, ce local a été aménagé en cabinet dentaire.
Il est actuellement loué par deux activités : un cabinet dentaire (1 100 €/mois CC) et un cabinet d'ostéopathe (850 €/mois CC);
Vous disposez également d'une place de parking fermée et securisé et d'un jardin privatif.
DPE : C 86
GES : C 17
Estimation annuelle des coûts entre 275€ et 372€ - année de référence : 2021
Bien en copropriété de 287 lots; sans procédure en cours.
Charges de copropriété = 128 euros/mois incluant l'entretien de la résidence, le chauffage et l'eau chaude sanitaire.
Votre négociateur Mary KONE EI immatriculation au RSAC de Versailles N° 538 609 355
Annonce proposée par un agent commercial
-
Commerces et santé
-
Loisirs
-
Ecoles
-
Transports
-
Pratique
vous intéresse

Montant estimé des dépenses annuelles d'énergie de ce logement pour un usage standard est compris entre 275 € et 372 € . 2000 étant l'année de référence des prix de l'énergie utilisés pour établir cette estimation.