Aller à :

  • Aller à la recherche
  • Aller au menu principal
  • Aller au contenu
  • Accueil
  • Actualités
  • Nos biens
    • Vente
    • Location
    • Vendus
  • Vente
  • Location
  • Gestion locative
  • Syndic de copropriété
  • Financement
  • Recrutement
  • Espace client
    • Transaction
    • Gestion Locative / Syndic
Se connecter
ESPACE PROPRIÉTAIRE ESPACE GESTION/SYNDIC
  1. Accueil
  2. Vente
  3. Paris
  4. Appartement
  5. T4
  6. Villa de medicis
  • Acheter De l'ancien
  • Louer
Créez votre alerte e-mail
Dans un rayon de
Budget
Mini €
Maxi €

    Faites estimer votre bien par un professionnel

    Estimer votre bien
    Vendu
    Mandat : 224064
    Appartement 84.15 m²
    Nombre de pièces 4
    Nombre de chambres 2
    Salle d'eau 1

    VILLA DE MEDICIS Paris (75005)

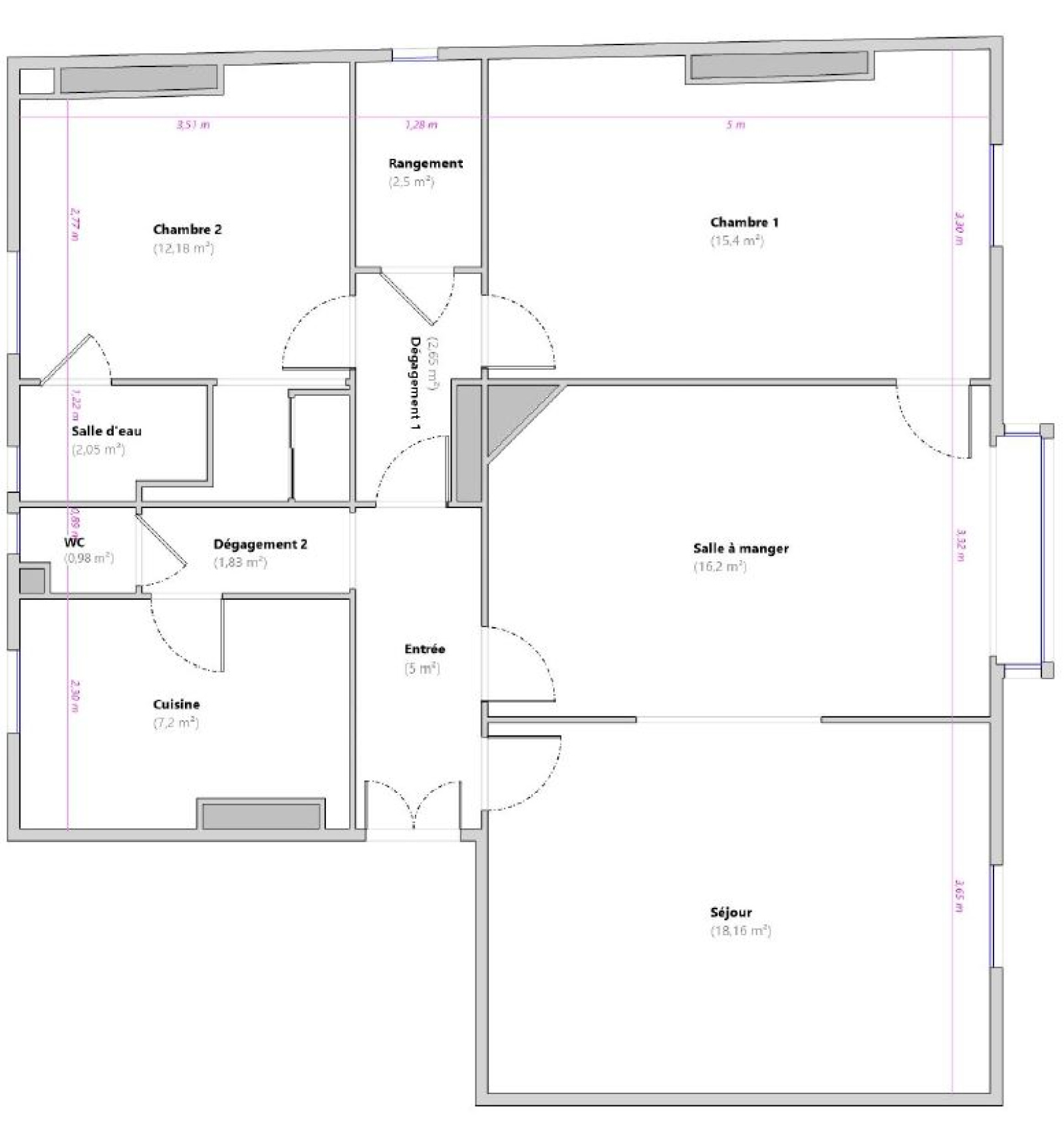
    Vous recherchez l'appartement parfait, le voici ! En plein cœur du Quartier du Val de Grâce, à l'angle de la rue Mouffetard, sur la partie piétonne de la rue de l'Arbalète, au 4ème étage avec ascenseur, d'un immeuble ancien, très bien entretenu, sécurisé avec gardien, vous trouverez ce bien de type 4 pièces. D'une superficie de 84.15 m² "loi Carrez", il est très bien optimisé, grâce à son plan en étoile, traversant, il vous offre un salon agréable orienté Sud Est, sans vis à vis avec une vue dégagée sur les jardins de la copropriété, une salle à manger, une cuisine avec fenêtre, deux chambres confortables au calme, possibilité d'une troisième chambre, une salle d'eau avec fenêtre, un wc. Tout le charme de l'ancien, grande hauteur sous plafond, parquet d'époque, cheminées, une cave. Il saura vous séduire, venez le visiter sans tarder ! Logement à consommation énergétique excessive Classe F. Montant des dépenses annuelles d'énergie pour un usage standard entre 1.880 € et 2.570 €/an. Les informations sur les risques auxquels est exposé ce bien sont disponibles sur le site Géorisques. https://www.georisques.gouv.fr.


    Les informations sur les risques auxquels ce bien est exposé sont disponibles sur le site Géorisques
    Le bien en vidéo
    Visite Virtuelle
    • Général
    • Détails +
    • DPE
    • Copropriété
    • Quartier
    • Honoraires
    Caractérisque Valeurs
    Code postal 75005
    Surface habitable (m²) 84,15 m²
    Surface loi Carrez (m²) 84,15 m²
    Nombre de chambre(s) 2
    Nombre de pièces 4
    Etage 4
    Ascenseur OUI
    Vue Cour /Dégagée
    Caractérisque Valeurs
    Nb de salle d'eau 1
    Cuisine Séparée
    Type de cuisine SEMI-EQUIPEE
    Mode de chauffage Electrique
    Type de chauffage Convecteur
    Format de chauffage Individuel
    Interphone OUI
    Balcon NON
    Cave OUI
    Surface cave (m²) 4
    Exposition Sud-Est
    Année de construction 1890
    Quartier Berthollet
    DPE GES
    Caractérisque Valeurs
    Copropriété OUI
    Lot n° 58
    nombre de lots 70
    Quote Part annuelle des charges 2 061,52 €
    plan de sauvegarde NON
    statut du syndic pas de procédure en cours
    • Commerces et santé
    • Loisirs
    • Ecoles
    • Transports
    • Pratique
    Barème d'honoraires
    Partager le bien
    Nos outils
    Imprimer Imprimer
    Calculatrice financière

    * Champ obligatoire

    Partager l'annonce

    * champs obligatoires

    Les informations recueillies sur ce formulaire sont enregistrées dans un fichier informatisé par La Boite Immo pour la gestion de la clientèle/prospects de CPH Immobilier. Elles sont conservées jusqu'à demande de suppression et sont destinées à CPH Immobilier. La base légale du traitement repose sur l'intérêt légitime du Responsable du Traitement. Conformément à la loi « informatique et libertés », vous pouvez exercer votre droit d'accès aux données vous concernant et les faire rectifier en contactant CPH Immobilier. Nous vous informons de l’existence de la liste d'opposition au démarchage téléphonique « Bloctel », sur laquelle vous pouvez vous inscrire ici : https://conso.bloctel.fr/
    Ce site est protégé par reCAPTCHA, les Politiques de Confidentialité et les Conditions d'Utilisation de Google s'appliquent.

    Partager avec vos proches

    Facebook Facebook
    Messenger Messenger
    Twitter Twitter
    WhatsApp WhatsApp
    LinkedIn LinkedIn
    Copier le lien Copier le lien
    Détail des diagnostics énergétiques
    DPE GES

    Logement à consommation énergétique excessive : classe F

    Montant estimé des dépenses annuelles d'énergie de ce logement pour un usage standard est compris entre 1 880 € et 2 570 € . 2021 étant l'année de référence des prix de l'énergie utilisés pour établir cette estimation.

    Contacter
    nos agences

    Remplissez ce formulaire, nous ferons de notre mieux pour vous répondre dans les meilleurs délais.

    TRAD_MELTEM_voscoordonnees
    TRAD_MELTEM_voredemande
    Règlementation

    * Champ obligatoire

    Les informations recueillies sur ce formulaire sont enregistrées dans un fichier informatisé par La Boite Immo pour la gestion de la clientèle/prospects de CPH Immobilier. Elles sont conservées jusqu'à demande de suppression et sont destinées à CPH Immobilier. La base légale du traitement repose sur l'intérêt légitime du Responsable du Traitement. Conformément à la loi « informatique et libertés », vous pouvez exercer votre droit d'accès aux données vous concernant et les faire rectifier en contactant CPH Immobilier. Nous vous informons de l’existence de la liste d'opposition au démarchage téléphonique « Bloctel », sur laquelle vous pouvez vous inscrire ici : https://conso.bloctel.fr/
    Ce site est protégé par reCAPTCHA, les Politiques de Confidentialité et les Conditions d'Utilisation de Google s'appliquent.

    Page d'accueil
    Adhérents

    © 2026 | Tous droits réservés | Traduction powered by Google |

    • Plan du site
    • Mentions légales
    • Nos honoraires
    • Nos liens
    • RGPD
    • Acheter De l'ancien
    • Louer
    Créez votre alerte e-mail
    Dans un rayon de
      Budget
      Mini €
      Maxi €
      Surface
      Mini m²
      Maxi m²

      Particularites

      Equipements

      Exposition

      Afficher les biens

      Faites estimer votre bien par un professionnel

      Estimer votre bien